
ออกแบบระบบไฟฟ้าและแสงสว่าง บ้านแฝดชั้นเดียว Type B โครงการ นราเฮ้าส์ ไพรด์วิลล์ (Narahouse Pride Ville)
ยกระดับการอยู่อาศัยด้วยระบบไฟฟ้าที่ได้มาตรฐานและดีไซน์ที่ลงตัว
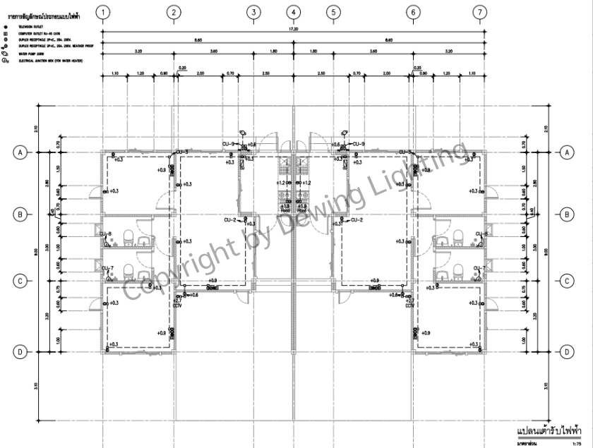
สำหรับบ้านแฝดชั้นเดียว Type B โครงการนราเฮ้าส์ ไพรด์วิลล์ ทีมงานได้ออกแบบระบบไฟฟ้าโดยเน้นความโปร่งโล่งของพื้นที่ (Space Optimization) และความสะดวกในการควบคุมแสงสว่างจากจุดเดียว เพื่อสร้างประสบการณ์การอยู่อาศัยที่ดีที่สุด
ไฮไลท์การดำเนินงาน:
-
Electrical Plan Design: จัดทำผังวงจรไฟฟ้าแยกส่วนอย่างเป็นระบบ ง่ายต่อการซ่อมบำรุงและดูแลรักษาในระยะยาว
-
Interior Lighting Solution: เลือกใช้ดวงโคม LED คุณภาพสูงที่ให้ค่าความถูกต้องของสี (CRI) เหมาะสม ช่วยให้ภายในบ้านดูสวยงามและเป็นธรรมชาติ
-
Exterior Safety Power: ออกแบบจุดจ่ายไฟภายนอกและไฟสนามโดยคำนึงถึงความปลอดภัยและการป้องกันความชื้นตามมาตรฐาน IP Rating
-
Reliable Protection System: มั่นใจด้วยการออกแบบระบบสายดินและอุปกรณ์ตัดไฟอัตโนมัติที่คำนวณโหลดมาอย่างแม่นยำ
คลังภาพโครงการ

สรุปโครงการ
ประเภท
งานออกแบบระบบไฟฟ้า
สถานที่
อำเภอบางปะอิน จังหวัดพระนครศรีอยุธยา 13160
ปีที่ทำโครงการ
2024
ผลงานอื่นที่คุณอาจสนใจ
ดูทั้งหมด
ออกแบบระบบไฟฟ้าและแสงสว่าง บ้านแฝดชั้นเดียว Type A โครงการ นราเฮ้าส์ ไพรด์วิลล์ (Narahouse Pride Ville)
งานวางระบบไฟฟ้าครบวงจรสำหรับบ้านแฝดชั้นเดียว เน้นฟังก์ชันการใช้งานที่คล่องตัว การจัดวางตำแหน่งสวิตช์และเต้ารับที่เหมาะสมกับไลฟ์สไตล์ยุคใหม่

ออกแบบระบบไฟฟ้าและแสงสว่าง ทาวน์เฮ้าส์ 2 ชั้น โครงการ นราเฮ้าส์ ไพรด์วิลล์ (Narahouse Pride Ville)
บริการออกแบบวางผังระบบไฟฟ้าสำหรับทาวน์เฮ้าส์ 2 ชั้น เน้นการจัดวางตำแหน่งปลั๊กและแสงสว่างที่ตอบโจทย์การใช้ชีวิตยุคใหม่ พร้อมความปลอดภัยตามมาตรฐานวิศวกรรม

ออกแบบระบบไฟฟ้าและแสงสว่าง ซุ้มประตูทางเข้า (Main Gate) โครงการ นราเฮ้าส์ ไพรด์วิลล์ (Narahouse Pride Ville)
ยกระดับความหรูหราให้ทางเข้าโครงการด้วยการออกแบบแสงสว่างที่เน้นมิติสถาปัตยกรรม พร้อมการคำนวณค่าความสว่างที่แม่นยำเพื่อความปลอดภัยและสวยงาม