
ออกแบบระบบไฟฟ้าและแสงสว่าง บ้านแฝดชั้นเดียว Type A โครงการ นราเฮ้าส์ ไพรด์วิลล์ (Narahouse Pride Ville)
การออกแบบระบบไฟฟ้าที่ตอบโจทย์ความสะดวกสบายในชั้นเดียว
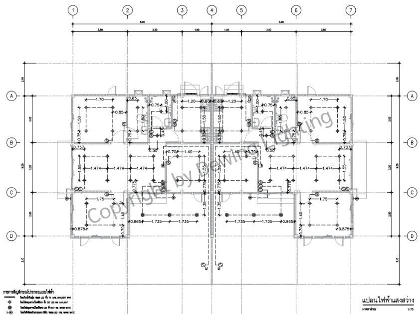
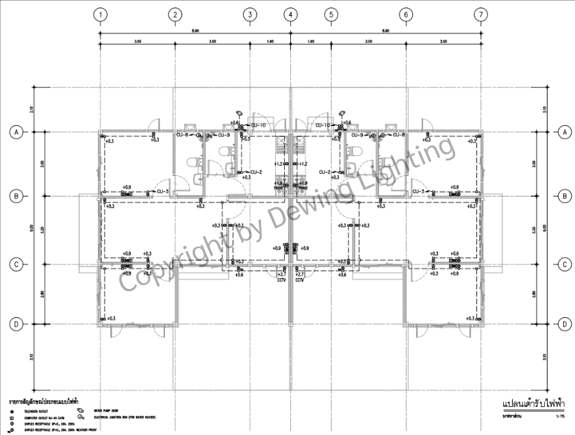
โครงการบ้านแฝดชั้นเดียว Type A ในเครือนราเฮ้าส์ ไพรด์วิลล์ ทางเราได้เน้นการออกแบบระบบไฟฟ้าที่เน้น "ความง่ายและปลอดภัย" (Simplicity & Safety) โดยคำนึงถึงพื้นที่ใช้สอยที่เชื่อมต่อถึงกันในชั้นเดียว เพื่อให้การควบคุมแสงสว่างและจุดจ่ายไฟครอบคลุมทุกความต้องการ
ไฮไลท์การดำเนินงาน:
-
Optimal Lighting Layout: ออกแบบการกระจายแสงสว่างให้ทั่วถึงทุกมุมห้อง แม้จะเป็นบ้านชั้นเดียวแต่เน้นการดึงแสงธรรมชาติมาผสมผสานกับไฟ LED เพื่อความประหยัดพลังงาน
-
Smart Placement: วางตำแหน่งสวิตช์ไฟในจุดที่เข้าถึงง่าย เช่น บริเวณทางเข้าห้องและหัวเตียง เพื่อความสะดวกของสมาชิกทุกวัยในครอบครัว
-
Future-Proofing: คำนวณโหลดไฟฟ้าให้รองรับการติดตั้งอุปกรณ์เพิ่มเติม เช่น ระบบ Smart Home หรือกล้องวงจรปิดรอบตัวบ้าน
-
Safety Standards: ติดตั้งตู้ควบคุมไฟฟ้า (Consumer Unit) พร้อมระบบตัดไฟอัตโนมัติมาตรฐานสากล
คลังภาพโครงการ

สรุปโครงการ
ประเภท
งานออกแบบระบบไฟฟ้า
สถานที่
อำเภอบางปะอิน จังหวัดพระนครศรีอยุธยา 13160
ปีที่ทำโครงการ
2024
ผลงานอื่นที่คุณอาจสนใจ
ดูทั้งหมด
ออกแบบระบบไฟฟ้าและแสงสว่าง บ้านแฝดชั้นเดียว Type B โครงการ นราเฮ้าส์ ไพรด์วิลล์ (Narahouse Pride Ville)
บริการออกแบบและวางผังระบบไฟฟ้าสำหรับบ้านแฝดชั้นเดียว Type B เน้นความลงตัวของแสงสว่างและการจัดวางจุดจ่ายไฟที่รองรับการใช้งานทุกตารางนิ้ว

ออกแบบระบบไฟฟ้าและแสงสว่าง ทาวน์เฮ้าส์ 2 ชั้น โครงการ นราเฮ้าส์ ไพรด์วิลล์ (Narahouse Pride Ville)
บริการออกแบบวางผังระบบไฟฟ้าสำหรับทาวน์เฮ้าส์ 2 ชั้น เน้นการจัดวางตำแหน่งปลั๊กและแสงสว่างที่ตอบโจทย์การใช้ชีวิตยุคใหม่ พร้อมความปลอดภัยตามมาตรฐานวิศวกรรม

ออกแบบระบบไฟฟ้าและแสงสว่าง ซุ้มประตูทางเข้า (Main Gate) โครงการ นราเฮ้าส์ ไพรด์วิลล์ (Narahouse Pride Ville)
ยกระดับความหรูหราให้ทางเข้าโครงการด้วยการออกแบบแสงสว่างที่เน้นมิติสถาปัตยกรรม พร้อมการคำนวณค่าความสว่างที่แม่นยำเพื่อความปลอดภัยและสวยงาม