
ออกแบบระบบไฟฟ้าและแสงสว่าง บ้านเดี่ยวโครงการ นราอิลิแกนซ์ (Nara Elegance)
การออกแบบที่ผสมผสานฟังก์ชันและสุนทรียภาพ
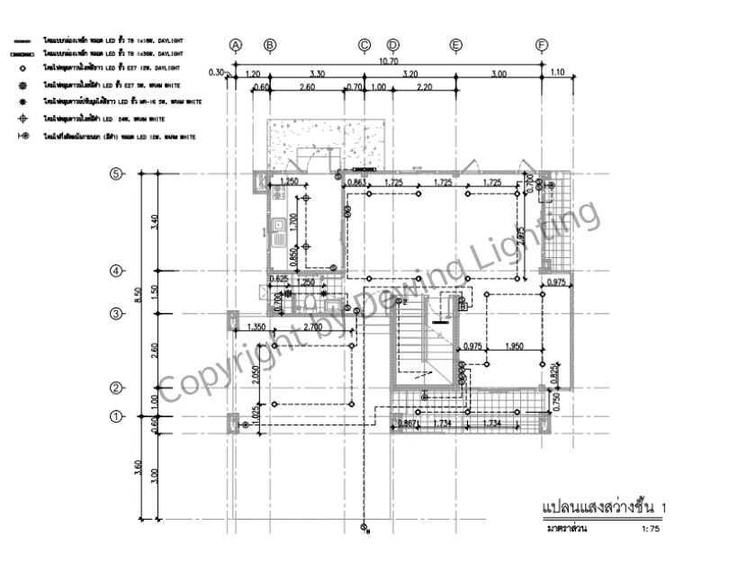
สำหรับโครงการบ้านเดี่ยว นราอิลิแกนซ์ ทีมงาน Dewing Lighting ได้รับความไว้วางใจให้เป็นผู้ออกแบบระบบไฟฟ้าและแสงสว่างทั้งหมด (Electrical Design Plan) โดยเน้นไปที่การสร้างบรรยากาศที่อบอุ่นและทันสมัยตามสไตล์ Modern Contemporary
ไฮไลท์การดำเนินงาน:
-
การวางผังแสงสว่าง (Lighting Layout): จัดทำแปลนระบบแสงสว่างทั้งชั้น 1 และ ชั้น 2 อย่างละเอียด โดยคำนวณระยะการส่องสว่างให้ครอบคลุมทุกพื้นที่การใช้งาน
-
การเลือกใช้ประเภทดวงโคม: > * เลือกใช้โคมไฟดาวน์ไลท์ LED (Warm White) ในพื้นที่พักผ่อนเพื่อสร้างความผ่อนคลาย
-
ใช้โคมไฟ LED Daylight ในพื้นที่ที่ต้องการความชัดเจน เช่น ห้องครัว และห้องน้ำ
-
ติดตั้งไฟกิ่งภายนอก (Outdoor Wall Lamp) ค่า IP Rating มาตรฐาน เพื่อความทนทานและเพิ่มมิติให้กับตัวบ้านยามค่ำคืน
-
-
ความปลอดภัยและมาตรฐาน: ควบคุมการออกแบบให้เป็นไปตามมาตรฐานวิศวกรรมไฟฟ้า เพื่อความปลอดภัยสูงสุดของผู้อยู่อาศัย
คลังภาพโครงการ

ผลงานอื่นที่คุณอาจสนใจ
ดูทั้งหมด
ออกแบบระบบไฟฟ้าและแสงสว่าง บ้านแฝดชั้นเดียว Type B โครงการ นราเฮ้าส์ ไพรด์วิลล์ (Narahouse Pride Ville)
บริการออกแบบและวางผังระบบไฟฟ้าสำหรับบ้านแฝดชั้นเดียว Type B เน้นความลงตัวของแสงสว่างและการจัดวางจุดจ่ายไฟที่รองรับการใช้งานทุกตารางนิ้ว

ออกแบบระบบไฟฟ้าและแสงสว่าง บ้านแฝดชั้นเดียว Type A โครงการ นราเฮ้าส์ ไพรด์วิลล์ (Narahouse Pride Ville)
งานวางระบบไฟฟ้าครบวงจรสำหรับบ้านแฝดชั้นเดียว เน้นฟังก์ชันการใช้งานที่คล่องตัว การจัดวางตำแหน่งสวิตช์และเต้ารับที่เหมาะสมกับไลฟ์สไตล์ยุคใหม่

ออกแบบระบบไฟฟ้าและแสงสว่าง ทาวน์เฮ้าส์ 2 ชั้น โครงการ นราเฮ้าส์ ไพรด์วิลล์ (Narahouse Pride Ville)
บริการออกแบบวางผังระบบไฟฟ้าสำหรับทาวน์เฮ้าส์ 2 ชั้น เน้นการจัดวางตำแหน่งปลั๊กและแสงสว่างที่ตอบโจทย์การใช้ชีวิตยุคใหม่ พร้อมความปลอดภัยตามมาตรฐานวิศวกรรม